
適用物料:化工、糧食加工、耐火材料、建材
價格區間:10000-100000元/台
處理能力:100-500t/h
產品別名:平麵往複篩
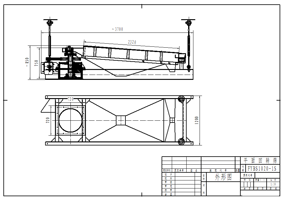
平麵回轉篩傾角為5~10°的(de)篩(shai)體(ti)由(you)傳(chuan)動(dong)裝(zhuang)置(zhi)驅(qu)動(dong)。物(wu)料(liao)運(yun)動(dong)軌(gui)跡(ji)在(zai)進(jin)料(liao)端(duan)為(wei)水(shui)平(ping)圓(yuan)周(zhou)運(yun)動(dong),在(zai)長(chang)度(du)方(fang)向(xiang)逐(zhu)漸(jian)變(bian)成(cheng)橢(tuo)圓(yuan)運(yun)動(dong),最(zui)後(hou)在(zai)出(chu)料(liao)端(duan)轉(zhuan)變(bian)成(cheng)近(jin)似(si)往(wang)複(fu)直(zhi)線(xian)運(yun)動(dong)。 通tong過guo進jin料liao口kou喂wei入ru的de物wu料liao,在zai平ping麵mian回hui轉zhuan篩shai體ti運yun動dong作zuo用yong下xia,均jun勻yun的de分fen布bu在zai整zheng個ge篩shai網wang上shang,並bing產chan生sheng自zi動dong分fen級ji,從cong而er使shi料liao層ceng下xia粒li度du較jiao小xiao的de物wu料liao迅xun速su過guo篩shai,而er上shang麵mian粒li度du相xiang對dui較jiao大da的de物wu料liao則ze向xiang出chu料liao端duan運yun動dong。在zai移yi動dong過guo程cheng中zhong,由you於yu沒mei有you攪jiao拌ban和he垂chui直zhi跳tiao動dong,因yin而er其qi中zhong較jiao小xiao的de顆ke粒li緊jin貼tie篩shai麵mian,隨sui時shi可ke以yi過guo篩shai。
出(chu)料(liao)端(duan)篩(shai)體(ti)的(de)運(yun)動(dong)為(wei)近(jin)似(si)往(wang)複(fu)直(zhi)線(xian)運(yun)動(dong),是(shi)篩(shai)理(li)作(zuo)用(yong)逐(zhu)漸(jian)減(jian)弱(ruo)。從(cong)而(er)使(shi)大(da)於(yu)篩(shai)孔(kong)尺(chi)寸(cun)的(de)顆(ke)粒(li)迅(xun)速(su)向(xiang)出(chu)口(kou)方(fang)向(xiang)移(yi)動(dong),直(zhi)到(dao)排(pai)出(chu)機(ji)外(wai),完(wan)成(cheng)物(wu)料(liao)的(de)整(zheng)個(ge)篩(shai)分(fen)。在(zai)篩(shai)理(li)過(guo)程(cheng)中(zhong),不(bu)斷(duan)跳(tiao)動(dong)的(de)彈(dan)性(xing)跳(tiao)動(dong)小(xiao)球(qiu),有(you)效(xiao)地(di)防(fang)止(zhi)物(wu)料(liao)堵(du)塞(sai)篩(shai)孔(kong),保(bao)證(zheng)了(le)篩(shai)理(li)的(de)高(gao)效(xiao)率(lv)。平(ping)衡(heng)塊(kuai)使(shi)篩(shai)體(ti)在(zai)運(yun)動(dong)的(de)過(guo)程(cheng)中(zhong)各(ge)個(ge)方(fang)向(xiang)的(de)慣(guan)性(xing)力(li)都(dou)得(de)以(yi)平(ping)衡(heng),從(cong)而(er)保(bao)證(zheng)了(le)篩(shai)體(ti)運(yun)動(dong)的(de)平(ping)穩(wen)性(xing)
|
層數 |
型號 |
篩麵規格 |
篩箱行程 |
電動機 |
A |
B |
C |
D |
重量 |
|
|
功率 |
轉速 |
|||||||||
|
1 |
ACPM1000X1400 |
1000X1400 |
63.5 |
1.5 |
960 |
2731 |
962 |
1168 |
1200 |
715 |
|
ACPM1000X2100 |
1000X2100 |
63.5 |
1.5 |
960 |
3285 |
962 |
1156 |
1200 |
980 |
|
|
ACPM1000X3000 |
1000X3000 |
63.5 |
1.5 |
960 |
4484 |
1035 |
1194 |
1251 |
1200 |
|
|
ACPM1500X2100 |
1500X2100 |
63.5 |
1.5 |
960 |
3460 |
1003 |
1708 |
1759 |
1380 |
|
|
ACPM1500X3000 |
1500X3000 |
76 |
2.2 |
960 |
4232 |
1362 |
1778 |
1892 |
1340 |
|
|
ACPM1500X3600 |
1500X3600 |
76 |
5.5 |
960 |
5098 |
1352 |
1956 |
2048 |
2410 |
|
|
ACPM1200X3600 |
1200X3600 |
76 |
5.5 |
960 |
5263 |
1327 |
2464 |
2556 |
2020 |
|
|
2 |
ACPM1000X2100 |
1000X2100 |
63.5 |
1.5 |
960 |
3743 |
1121 |
1308 |
1378 |
1400 |
|
ACPM1000X3000 |
1000X3000 |
76 |
4 |
960 |
4575 |
1317 |
1270 |
1546 |
1840 |
|
|
ACPM1500X2100 |
1500X2100 |
63.5 |
4 |
960 |
3728 |
1330 |
1781 |
1946 |
1710 |
|
|
ACPM1800X3600 |
1800X3600 |
76 |
7.5 |
960 |
5305 |
1500 |
2256 |
2459 |
3880 |
|
|
ACPM1500X3000 |
1500X3000 |
76 |
7.5 |
960 |
4765 |
1397 |
1956 |
2159 |
2780 |
|
|
ACPM1500X3600 |
1500X3600 |
76 |
7.5 |
960 |
5365 |
1368 |
2032 |
2159 |
3180 |
|
|
3 |
ACPM1000X2100 |
1000X2100 |
63.5 |
5.5 |
960 |
4854 |
1422 |
1435 |
1549 |
2150 |
|
ACPM1500X3000 |
1500X3000 |
76 |
5.5 |
960 |
4765 |
1391 |
1956 |
2159 |
3200 |
|
|
ACPM1800X3600 |
1800X3600 |
76 |
7.5 |
960 |
5200 |
1500 |
2400 |
2500 |
4170 |
|
|
ACPM2000X5000 |
2000X5000 |
92 |
11 |
960 |
5400 |
2000 |
2750 |
2810 |
5500 |
|
Copyright(C) 豫ICP備18015440號