
適用物料:原煤、大塊物料
價格區間:5-100W
處理能力:50-460t/h
產品別名:波動振動篩,礦用波動篩
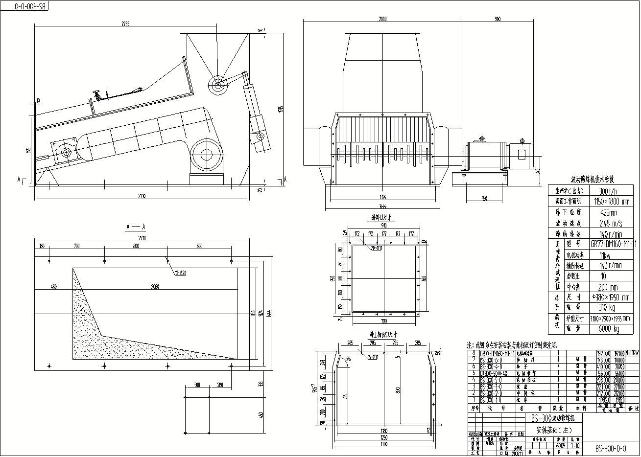
BS係列礦用波動篩是火力發電廠輸煤係統的重要設備之一,在冶金、建材、化工、煤炭等係統也可廣為利用。波動篩是由多根平行排列的滾軸組成,一般為6~10根滾軸,多達20根滾軸。滾軸上裝有梅花形篩片。滾軸由電動機和減速器經鏈輪或齒輪帶動滾軸旋轉。轉動方向與物料方向相同。
奧創機械波動篩出廠操作維護及檢修知識簡介:
一、工作時,首先開車,然後加入待篩分物料,否則會造成機器損傷,降低機器使用壽命。
二、在機器使用過程中,每次開機前必須檢查機器內是否存有物料。
三、應先開機,後給料。停機時,應先停料,後關機。確保停前機器內沒有物料。
四、禁止帶負荷開機。
五、每三個月向軸承內部加注潤滑油一次。
六、機器投入使用後三個月檢修一次。
七、當篩片受損嚴重後,不能達到篩分目的時,應及時更換新的篩片
波動篩未來應用須知:
隨著經濟的快速發展,現代工業的大型化係統化,科(ke)技(ji)日(ri)益(yi)更(geng)新(xin),人(ren)們(men)對(dui)礦(kuang)石(shi)的(de)需(xu)求(qiu)量(liang)也(ye)越(yue)來(lai)越(yue)大(da)。但(dan)同(tong)時(shi),由(you)於(yu)礦(kuang)產(chan)的(de)過(guo)度(du)開(kai)發(fa)使(shi)得(de)岩(yan)石(shi)趨(qu)向(xiang)低(di)品(pin)質(zhi)化(hua)。為(wei)此(ci),針(zhen)對(dui)這(zhe)種(zhong)易(yi)碎(sui)裂(lie),抗(kang)壓(ya)強(qiang)度(du)中(zhong)等(deng)的(de)礦(kuang)材(cai),需(xu)要(yao)一(yi)種(zhong)適(shi)合(he)的(de)篩(shai)分(fen)機(ji)篩(shai)分(fen)。波(bo)動(dong)篩(shai)無(wu)論(lun)其(qi)功(gong)能(neng)還(hai)是(shi)工(gong)作(zuo)的(de)穩(wen)定(ding)性(xing)和(he)效(xiao)率(lv),都(dou)是(shi)不(bu)二(er)的(de)選(xuan)擇(ze)。它(ta)將(jiang)會(hui)是(shi)未(wei)來(lai)水(shui)泥(ni)礦(kuang)石(shi)等(deng)礦(kuang)業(ye)篩(shai)分(fen)體(ti)係(xi)的(de)主(zhu)流(liu)設(she)備(bei)。在(zai)確(que)保(bao)篩(shai)分(fen)效(xiao)率(lv)和(he)篩(shai)機(ji)工(gong)作(zuo)性(xing)能(neng)的(de)同(tong)時(shi)追(zhui)求(qiu)大(da)型(xing)化(hua)和(he)係(xi)列(lie)化(hua)也(ye)是(shi)一(yi)個(ge)重(zhong)要(yao)的(de)發(fa)展(zhan)方(fang)向(xiang)。
波動篩是由數片並列的特製桃形篩片組成的篩孔與幾排轉子(篩片與軸組成)形成篩麵,各轉子以同速、tongxiangzuozhouxiangxuanzhuan,zaiqizuoyongxia,shaimianshangdewuliaojiezhuyutaoxingshaipianjiaozhihuizhuan,nianyekuaiwuliaobeibotengqilai,bingjingshaimiandaosuimeijiposui,xiaolijingwuliaozejingshaikongzhijieluoxia,congerdaodashaifendemude。weilehuodezhouxiangjizongxiangdebodong,tigaoshaifenxiaolv,anzhuangshitongyizhoushangxianglindeliangshaipianzaijingxiangcuokaiyidengweijiao(15°、30°或45°),相鄰兩軸上的篩片位置則以交織的形式排列。



|
型 號
|
BS-100
|
BS-200
|
BS-300
|
BS-500
|
BS-700
|
BS-1000
|
BS-1400
|
|
|
出 力(t/h)
|
100
|
200
|
300
|
500
|
700
|
1000
|
1400
|
|
|
軸 數
|
6
|
7
|
7
|
8
|
9
|
11
|
11
|
|
|
篩孔尺寸(mm)
|
40x 100
|
40x130
|
40x130
|
40x130
|
40x130
|
40x130
|
40x130
|
|
|
篩分效率(%)
|
90
|
90
|
90
|
90
|
90
|
90
|
90
|
|
|
篩軸轉速(r/min)
|
140
|
140
|
140
|
140
|
140
|
140
|
140
|
|
|
電機功率(Kw)
|
3.0
|
5.5
|
7.5
|
11
|
11
|
15
|
22
|
|
|
電動推杆
|
型 號
|
手 動
|
DT300-50- 40
|
DT300-50- 40
|
DT500-50- 40
|
DT500-50- 40
|
DT500-50- 40
|
DT500-50- 40
|
|
功 率(Kw)
|
|
0.37
|
0.37
|
0.55
|
0.55
|
0.55
|
0.55
|
|
|
推 力(Kg)
|
|
300
|
300
|
500
|
500
|
500
|
500
|
|
|
行 程(mm)
|
|
500
|
500
|
500
|
500
|
500
|
500
|
|
|
外形尺寸(長x 寬x高)(mm)
|
2655x 2250x 1400
|
3100x 2550x 1935
|
3100x 2900x 1935
|
3400x 3000x 2050
|
3800x 3100x 2150
|
4200x 3100x 2250
|
4500x 3100x 2250
|
|
|
質 量(Kg)
|
3500
|
5100
|
6000
|
6500
|
7100
|
9820
|
11800
|
|
Copyright(C) 豫ICP備18015440號